- Strona główna
- Postępowanie ID 1218428
Wadium w 2 minuty
Uzyskaj wadium bez dokumentów i odchodzenia od komputera, w 3 krokach:
kliknij podaj dane opłać online
Sprawdź, jak to zrobić - Film
Postępowanie ID: 1218428 :
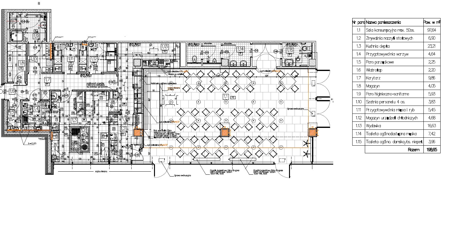
13/DZM Na najem powierzchni pod lokal gastronomiczny w budynku Uniwersytetu Medycznego im. Karola Marcinkowskiego w Poznaniu przy ul. Rokietnickiej 5E.
Wystawiający
-
UżytkownikAnna Vogt
-
Organizacja
-
Wiadomość do zamawiającego
Terminy
-
Zamieszczenia2025-11-20 12:38:00
-
Składania2025-12-08 12:00:00
-
Otwarcie ofert2025-12-08 12:00:00
-
TrybZapytanie o propozycję
-
RodzajUsługa
Wymagania i specyfikacja
Na najem powierzchni pod lokal gastronomiczny w budynku Uniwersytetu Medycznego im. Karola Marcinkowskiego w Poznaniu przy ul. Rokietnickiej 5E.
Szanowni Państwo,
informujemy o postępowaniu prowadzonym przez Zamawiającego w trybie zgodnym z regulaminem wewnętrznym organizacji.
Zapraszamy do złożenia ofert poprzez poniższy formularz elektroniczny.
Kryterium oceny ofert - 80% cena,
20% doświadczenie w prowadzeniu dział. gastronomicznej
- Termin związania ofertą - 30 dni.
- Zamawiający wymaga posiadania uprawnień do prowadzenia działalności objętej przedmiotem zamówienia.
- Zamawiający wymaga przeprowadzenia wizji lokalnej.
- Ofertę należy sporządzić w języku polskim.
Dodatkowe informacje:
- Szczegółowe warunki współpracy opisane zostały w zapytaniu ofertowym i projekcie umowy.
- Postępowanie dotyczy najmu powierzchni pod lokal gastronomiczny w budynku Uniwersytetu Medycznego im. Karola Marcinkowskiego położony w Poznaniu przy ul. Rokietnickiej 5E– Dom Studencki "Karolek".
- Termin wizji lokalnej: 28.11.2025 r. godz.: 10.00 Stawiennictwo w miejscu: wejście główne do budynku Dom Studencki „Karolek” przy ul. Rokietnickiej 5E w Poznaniu.
- Okres najmu - 12 miesięcy od dnia protokolarnego przekazania powierzchni z możliwością przedłużenia o kolejne 12 miesięcy. Uruchomienie lokali najpóźniej w ciągu 1 miesiąca od dnia protokolarnego przekazania powierzchni
- W okresie od 1 lipca do 30 września możliwość :
- zamknięcia lokalu, ponoszenie jedynie kosztów eksploatacji lokalu oraz opłaty lokalnej – podatku od nieruchomości
- lub prowadzenie działalności z obniżoną stawką czynszu najmu do 50% plus koszty eksploatacji lokalu oraz opłata lokalna – podatek od nieruchomości.
Zamawiającemu w każdej chwili przysługuje prawo do unieważnienia postępowania bez podania przyczyny.
Zamawiający odrzuci ofertę, jeżeli:
a) treść oferty nie odpowiada treści zapytania ofertowego;
b) jest nieważna na podstawie przepisów prawa.
W przypadku pytań:
- merytorycznych, proszę o kontakt poprzez przycisk "Wyślij wiadomość do zamawiającego"
- związanych z obsługą platformy, proszę o kontakt z Centrum Wsparcia Klienta platformy zakupowej Open Nexus czynnym od poniedziałku do piątku w dni robocze, w godzinach od 8:00 do 17:00.
tel. 22 101 02 02
e-mail: cwk@platformazakupowa.pl
Zaznaczamy, że oficjalnym potwierdzeniem chęci realizacji zamówienia przez Zamawiającego jest wysłanie zamówienia lub podpisanie umowy.
Wiadomości z platformy zakupowej mają charakter informacyjny.
Załączniki do postępowania
Pobierz wszystkie załączniki
Komunikaty Wyślij wiadomość do zamawiającego
Przedmiot zamówienia Importuj dane z XLS
Wiadomość nie zostanie wyslana
Twoja wiadomość nie zostanie wysłana, czy jestes pewien ze chcesz zrezygnować z wysłania wiadomości?
Załączniki
